卧室客厅相互遮挡
大家知道,户型的设计,以横向展开为好。面宽大,进深小,户内采光通风都优,这也是为什么很多朋友推崇两梯两户的板楼。可是你看房多了就会发现,市场上有些户型,功能是窝在一起的,,比如今天我在网上看到的这个户型。

这个户型只占用了2.5个开间
观察一下这个户型就知道,外面的卧室和里面的客厅错开了半个开间——。如果它有3个开间,功能就不至于这么挤,之所以这样,就是为了省出半个开间。所以可以得出一个初步结论:出现这样的户型,是因为楼栋总面宽不够。
有3开间,功能就很顺畅

可是要注意,楼栋宽度不够,有很多办法化解,比如减少边户开间,或者中间户直接2开间,未必一定导致这种中间户。下面我们分析一下,是怎么一步步选择,最后走向这样的中间户。
总宽度是35米,我已经计算好了,共10开间
假设一个单元两梯四户,,这个开间数显然不能四户都是三开间,某些户型要减少开间。
四户全部3开间,单元共计12开间

工作中有三种办法,控制单元总开间不超过10个。
情况一:中间户3开间
这种情况最常见,中间户就是大家常看到的中户,比如下图
最常见的中间户

剩下4开间给两个边户,
可以口算一下,每个中户3开间,两个中户就是6开间。单元总共才10开间,两个边户都是两开间,所以单元平面是下面这样的。

中间户面积小有3开间,边户面积大却只有2开间
这样可以吗?可以。很多楼盘就是这么做的。可是它有一个逻辑问题——这样设计委屈了边户,。如果两户型面积差别小,还可以将就,假如边户130,中户95,再这样设计就说不过去了。
选择缩减了中户宽度
我们可以判断,出现题目里的中间户,它的面积肯定比边户小很多的,所以。
情况二:两边户都3开间
面积大的户型,占用开间多
如果边户面积大,还是要3开间。假设这栋楼对称,边户都是3开间,中户都是2开间,那么开间总和就是3+2+2+3=10,也满足总开间数要求。,合乎逻辑。
仅示意3+2+2+3开间关系

两开间的中间户无法设计出三房
可是这种设计有一个巨大的毛病:。大家可以回想一下自己看到的户型,我还没见过两开间的三房中户。这就尴尬了,中户面积95,对大多数楼盘来说,肯定需要设计三房一卫的,但是两开间达不到三房布局。所以说,这时候这种组合也不行。
两开间中间户无法实现三房

情况三:一边户3开间
保证一个边户面积130,另一个边户120
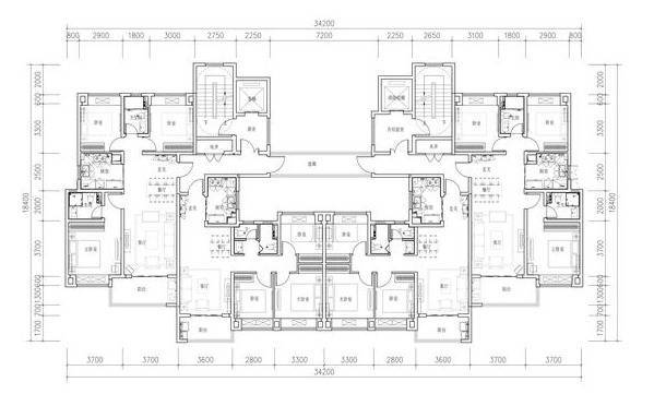
前面两个组合都不行,我们换一个思路,. 大边户3开间,小边户2开间(它的面积本来也小一些),这样两个边户共占用5开间。剩下5开间给两个中间户,所以每户只有2.5开间,最后就设计成了文章开始的这种户型,卧室和客厅错开半个开间,采光通风会有影响,但是它是可以实现三房布局的。
下图就是这样一个完整的单元平面。

边户面积大
我们再回顾一下怎么从单元宽度不够,一步步走到这种中间户型的:,所以优先保证3开间,只能缩减中间户开间;中间户2开间无法实现三房,所以不能两个边户都是3开间;只能实现一个边户3开间,中间户2.5开间,也可以实现三房功能,最后中间户就是这样的形式。












.jpg)










